電話:
							0577-86155736
							手機:
							0577-86155736
							郵箱:
							wzcryy@126.com
							地址:
							溫州市甌海區婁橋工業園繁瑞路11號

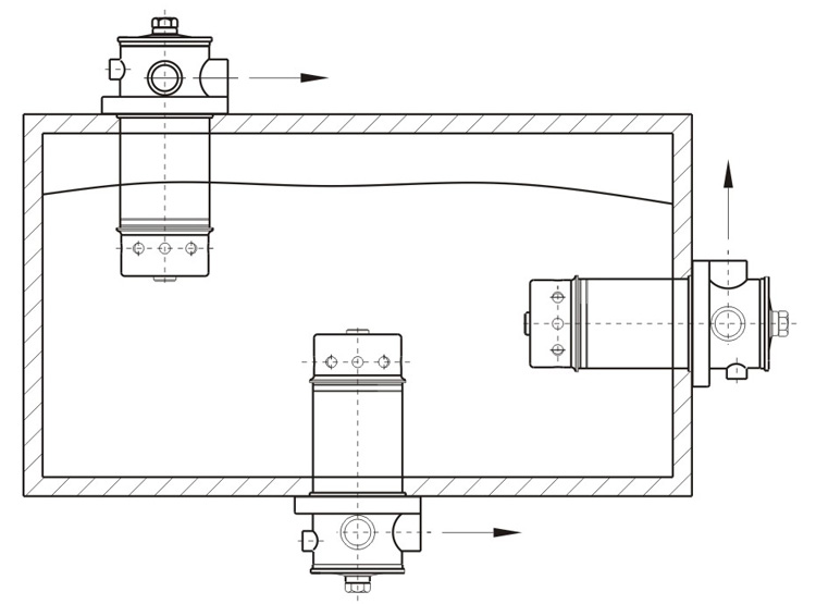
      ZL12-122自封式磁性吸油器具有手動自封閥,在更換濾芯時,應關閉自封閥,使油箱中的油液不會流出,安裝時過濾器應浸入油面以下,若自封閥沒有完全打開,切勿起動泵,否則會引起泵的吸空現象。
     該過濾器設有濾芯污染堵塞發訊器,當濾芯被污染物堵塞到出油口真空度為0.018MPa時發訊器便發出訊號,應及時更換或清洗濾芯,以免泵出現吸空等故障。
技術參數
| 型號 | 公稱流量(I/min) | 過濾精度(µm) | 通徑(mm) | 原始壓力損失(Mpa) | 連接方式 | 濾芯型號 | 
| ZL12-122※ | 120 | 10 25 80 | 3xΦ25 | ≤0.01 | 螺紋式 | ZL12x-122※ | 
| ZL12B-122/※ | 160 | 3xΦ32 | ZL12Bx122/※ | |||
| ZL12C-122/※ | 120 | 2xΦ32 | ZL12x122/※ | 
| 型號 | A | B | H | 
| ZL12-122 | 345 | 2-M33x2 | 470 | 
| ZL12B-122 | 455 | 3-M42x2 | 580 | 
| ZL12c-122 | 345 | 2-M42x2 | 470 | 
注:※為過濾精度,若使用介質為水一乙二醇,過濾精度為10μm,帶真空表則過濾器型號為ZL12.BH-122/10Y濾芯型號ZL12X.BH-122/10。若使用介質為普通液壓油,帶真空表則過濾型號為ZL12-122/10Y濾芯型號為ZL12X-122/10,若不帶真空表則過濾器型號為ZL12-122/10,濾芯型號不變。
安裝示意圖

濾芯壓差流量曲線

連接尺寸

